Добро пожаловать на http://vipplan.ru

Випплан Усолье-Сибирское - это тысячи проектов домов в нашем каталоге!

Вы всегда сможете найти для себя проект дома вашей мечты! Даже если этого не случилось, мы готовы в любую минуту предложить проект индивидуального дома.

Забыли пароль?
Вы еще не регистрировались?

Перейдите по ссылке ниже на страницу регистрации.

Регистрация...

Внимание!!!

В проектную документацию могут быть внесены изменения любой сложности, в соответствии в Вашими пожеланиями!

Полезные статьи

Советы по проектированию дома

Представляем Вашему вниманию несколько советов по проектированию дома. Все что касается выбора участка, размещению дома на участке, подбора проекта на строительство дома, советы по выбору технологии строительства и материалов и т.д....

Применение свайных фундаментов

Сваи представляют собой длинные стержни, погруженные глубоко в грунт или изготовленные непосредственно в грунте. Покупные сваи с одной стороны имеют заостренный конец, который забивается в почву с помощью специальной техники. Установка свай, изготовленных своими руками, предполагают бурение скважин, армирование и заливку бетонного раствора. ...

Проекты домов и коттеджей > Каталог проектов домов > Проект индивидуального одноэтажного жилого дома с мансардой Vg1267

Проект индивидуального одноэтажного жилого дома с мансардой Vg1267

Проект индивидуального одноэтажного жилого дома с мансардой
Зарегистрируйтесь

Проект № Vg1267


Техническое описание
Общая площадь: 126.66 м2
Жилая площадь: 77.61 м2
Высота здания: 7.82 м
Размеры дома: 10.26м×8.96м
Кол-во комнат: 5
Цокольный этаж: нет
Гараж: нет
Мансарда: есть

Kонструкция
Фундамент: Свайно-ростверковый (буронабивной)
Перекрытия: Деревянные двутавровые балки
Материал стен: Газобетон

Архитектурный раздел
Конструктивный раздел

Смета на строительство
АР+КР - 52 000 (Со скидкой 20%)
Проект индивидуального одноэтажного жилого дома с мансардой 10,26 x 8,96 м. Наружная отделка здания – фасадные панели «Ханьи». Фундамент – свайно-ростверковый (буронабивной). Наружные стены – из газобетонных блоков, базальтовой ваты, с облицовкой фасадными панелями «Ханьи». Внутренние стены - из газобетонных блоков. Перегородки - каркасные с ГКЛ. Пол первого этажа и межэтажное перекрытие - деревянные двутавровые балки. Крыша двускатная. Кровля – металлочерепица. Окна — металлопластиковые
Генплан застройки участка / Паспорт проекта 7000 руб / 10000 руб
Инженерный раздел (полный) 63500 руб
Смета на строительство 23813 руб (31750 руб)
Теплотехнический расчет материалов стен Бесплатно
Стоимость проекта со незначительнми изменениями 61800 руб
Стоимость проекта со средними изменениями* 71400 руб
Стоимость проекта со значительными изменениями** 73900 руб

План первого этажа


Прихожая — 5,90 м2
С/у — 3,90 м2
Холл — 4,38 м2
Гостиная — 24,55 м2
Кухня — 7,28 м2
Бойлерная — 3,49 м2
Кабинет — 11,10 м2

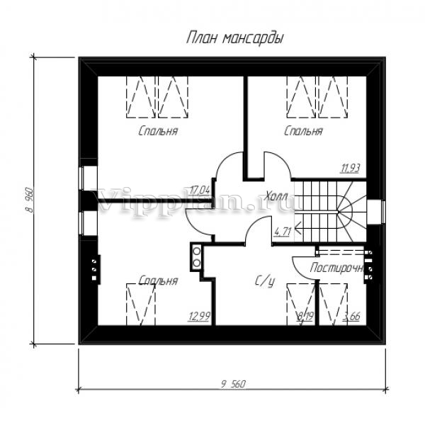
План мансардного этажа


Холл — 4,71 м2
Спальня — 17,04 м2
Спальня — 11,93 м2
Спальня — 12,99 м2
С/у — 8,19 м2
Постирочная — 3,66 м2
Проект индивидуального одноэтажного жилого дома с мансардой Проект индивидуального одноэтажного жилого дома с мансардой Проект индивидуального одноэтажного жилого дома с мансардой Проект индивидуального одноэтажного жилого дома с мансардой
Внесение изменений и привязка к участку строительства

В любой из проектов от компании VIPplan - Усолье-Сибирское по вашему желанию могут быть внесены изменения в материалы стен, материалы наружной отделки дома, а также будет произведена адаптация проекта под конкретный регион строительства (с учетом грунтов региона, геологических особенностей вашего участка и местных климатических условий) - БЕСПЛАТНО !!! (кроме проектов со скидкой и проектов наших партнеров).

Любой из проектов, размещенных на сайте usole-sibirskoe.vipplan.ru мы можем выполнить из требуемых вам строительных материалов: ячеистый бетон (газобетон, пеноблок), керамоблок, кирпич, шлакоблок, бетонный блок, дерево (брус, клееный брус), каркасная технология (деревянный каркас, металлокаркас (ЛСТК)).

Фасад дома и его наружную отделку так же возможно выполнить с применением различных облицовочных материалов: структурной штукатурки, (с утеплителем и без), сайдингом (пластиковый или металлосайдинг), фиброплитами, кирпича.

 
6 Избранные
проекты

Доставка проектов по России: Москва (Московская область), Санкт-Петербург (Ленинградская область), Краснодар, Ростов-на-Дону, Ставрополь, Сочи, Волгоград, Новосибирск, Белгород, Брянск, Воронеж, Саратов, Хабаровск, Астрахань, Нальчик, Владикавказ, Екатеринбург, Тюмень, Самара, Нижний Новгород, Казань, Пермь, Уфа, Челябинск, Красноярск, Ханты-Мансийск, Иркутск, Курган, Оренбург, Омск, Томск, Барнаул, Новокузнецк, Кемерово, Абакан, Чита, Якутск, Южно-Сахалинск, Петропавловск-Камчатский и страны ближнего зарубежья: Белоруссия, Украина, Казахстан