Добро пожаловать на http://vipplan.ru

Випплан Усолье-Сибирское - это тысячи проектов домов в нашем каталоге!

Вы всегда сможете найти для себя проект дома вашей мечты! Даже если этого не случилось, мы готовы в любую минуту предложить проект индивидуального дома.

Забыли пароль?
Вы еще не регистрировались?

Перейдите по ссылке ниже на страницу регистрации.

Регистрация...

Внимание!!!

В проектную документацию могут быть внесены изменения любой сложности, в соответствии в Вашими пожеланиями!

Полезные статьи

Выбор проекта дома (площадь, этажность - 1 или 2 этажа)

Для того что бы выбрать проект дома, предварительно необходимо определиться, какой будет площадь будущего дома (решение зависит от количества человек, планирующих постоянно в нем проживать), количество спален, санузлов и ванных комнат, компоновка дома, одноэтажный, масардный или двухэтажный дом (зависит от площади участка и предпочтений будущих хозяев) ...

Виды фундаментов

Можно смело сказать, что самое главное качество фундамента - надежность. Фундамент дома бывает нескольких видов. Все они отличаются прочностью, технологией закладывания и областью использования. Запомните, экономить на фундаменте – плохая идея. Затраты на ремонт будут огромными, а зачастую в случае нарушения технологии закладки фундамента исправить ошибку будет невозможно....

Проекты домов и коттеджей > Каталог проектов домов > Проект одноэтажного дома из пенобетона Vg1265

Проект одноэтажного дома из пенобетона Vg1265

Проект одноэтажного дома из пенобетона
Зарегистрируйтесь

Проект № Vg1265


Техническое описание
Общая площадь: 190.77 м2
Жилая площадь: 95.03 м2
Высота здания: 9.4 м
Размеры дома: 13.96м×11.96м
Кол-во комнат: 5
Цокольный этаж: есть
Гараж: нет
Мансарда: есть

Kонструкция
Фундамент: Ленточный
Перекрытия: Монолитные
Материал стен: Газобетон

Архитектурный раздел
Конструктивный раздел
Инженерный раздел
АР+КР - 60 000 (Со скидкой 20%)
АР+КР+ИР - 126 850 (Со скидкой 50%)
Проект индивидуального одноэтажного жилого дома с подвалом и мансардой с размерами здания 13,96 x 11,96 м. Наружная отделка здания – фасадная "теплая" штукатурка. Фундамент – ленточный монолитный ж/б. Наружные стены – из пенобетонного блока с отделкой фасадной "теплой" штукатуркой. Внутренние стены – из пенобетонного блока. Перегородки – из пенобетонного блока. Пол подвала и частично 1 этажа – пол по грунту. Межэтажные перекрытия – монолитные ж/б. Крыша – сложная. Кровля – битумная черепица. Окна – металлопластиковые. Лестницы – монолитные ж/б.
Генплан застройки участка / Паспорт проекта 7000 руб / 10000 руб
Инженерный раздел (полный) 66850 руб (95500 руб)
Смета на строительство 47750 руб
Теплотехнический расчет материалов стен Бесплатно
Стоимость проекта со незначительнми изменениями 70200 руб
Стоимость проекта со средними изменениями* 84600 руб
Стоимость проекта со значительными изменениями** 88400 руб

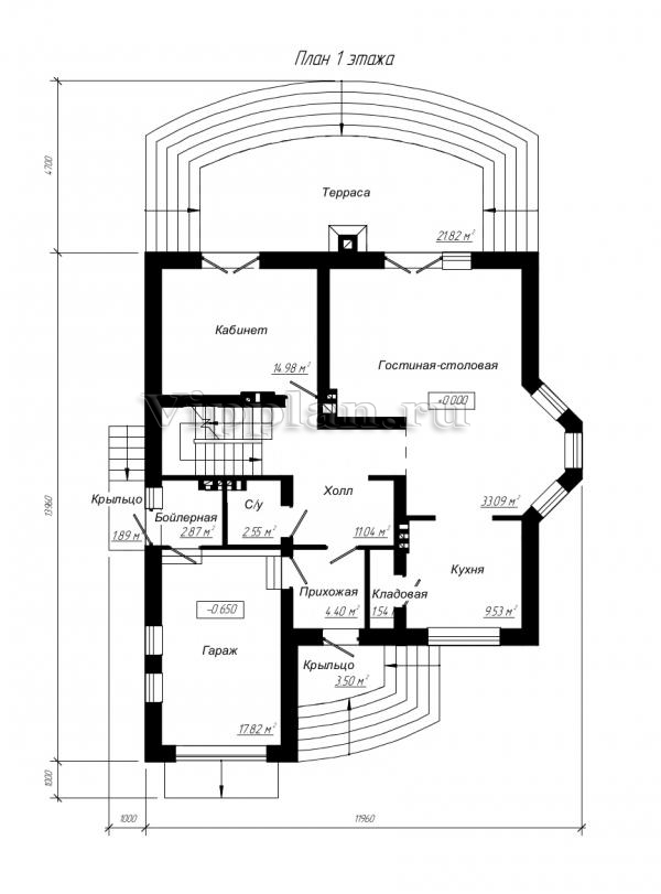
План цокольного этажа


Прихожая — 4,40 м2 Холл - 11,04 м2
Кухня - 9,53 м2
Кладовая - 1,54 м2
Гостиная - 33,09 м2
Кабинет - 14,98 м2
С/у - 2,55 м2
Бойлерная - 2,87 м2
Гараж - 17,82 м2

План первого этажа


Холл — 5,77 м2
С/у - 10,96 м2
Спальня - 15,21 м2
Спальня - 13,63 м2
Спальня - 18,12 м2
Балкон - 0,79 м2
Балкон - 0,79 м2
Балкон - 0,89 м2

План мансардного этажа



Проект одноэтажного дома из пенобетона Проект одноэтажного дома из пенобетона Проект одноэтажного дома из пенобетона Проект одноэтажного дома из пенобетона

Модификации проектов

Внесение изменений и привязка к участку строительства

В любой из проектов от компании VIPplan - Усолье-Сибирское по вашему желанию могут быть внесены изменения в материалы стен, материалы наружной отделки дома, а также будет произведена адаптация проекта под конкретный регион строительства (с учетом грунтов региона, геологических особенностей вашего участка и местных климатических условий) - БЕСПЛАТНО !!! (кроме проектов со скидкой и проектов наших партнеров).

Любой из проектов, размещенных на сайте usole-sibirskoe.vipplan.ru мы можем выполнить из требуемых вам строительных материалов: ячеистый бетон (газобетон, пеноблок), керамоблок, кирпич, шлакоблок, бетонный блок, дерево (брус, клееный брус), каркасная технология (деревянный каркас, металлокаркас (ЛСТК)).

Фасад дома и его наружную отделку так же возможно выполнить с применением различных облицовочных материалов: структурной штукатурки, (с утеплителем и без), сайдингом (пластиковый или металлосайдинг), фиброплитами, кирпича.

 
6 Избранные
проекты

Доставка проектов по России: Москва (Московская область), Санкт-Петербург (Ленинградская область), Краснодар, Ростов-на-Дону, Ставрополь, Сочи, Волгоград, Новосибирск, Белгород, Брянск, Воронеж, Саратов, Хабаровск, Астрахань, Нальчик, Владикавказ, Екатеринбург, Тюмень, Самара, Нижний Новгород, Казань, Пермь, Уфа, Челябинск, Красноярск, Ханты-Мансийск, Иркутск, Курган, Оренбург, Омск, Томск, Барнаул, Новокузнецк, Кемерово, Абакан, Чита, Якутск, Южно-Сахалинск, Петропавловск-Камчатский и страны ближнего зарубежья: Белоруссия, Украина, Казахстан