Добро пожаловать на http://vipplan.ru

Випплан Усолье-Сибирское - это тысячи проектов домов в нашем каталоге!

Вы всегда сможете найти для себя проект дома вашей мечты! Даже если этого не случилось, мы готовы в любую минуту предложить проект индивидуального дома.

Забыли пароль?
Вы еще не регистрировались?

Перейдите по ссылке ниже на страницу регистрации.

Регистрация...

Внимание!!!

В проектную документацию могут быть внесены изменения любой сложности, в соответствии в Вашими пожеланиями!

Полезные статьи

Проект дома

Строительство дома начинается с подготовительного этапа, основной частью которого является проект. Разработка дизайнерского проекта сопровождается оформлением документов после выбора участка....

Укладка тротуарной плитки

При укладке тротуарной плитки, необходимо соблюдать технологию, во избежание, разрушения и расшатывания покрытия. Первый этап - подготовка основания.  ...

Проекты домов и коттеджей > Каталог проектов домов > Одноэтажный дом с мансардой Vg996

Одноэтажный дом с мансардой Vg996

Одноэтажный дом с мансардой
Зарегистрируйтесь

Проект № Vg996


Техническое описание
Общая площадь: 144.48 м2
Жилая площадь: 88.73 м2
Высота здания: 8.43 м
Размеры дома: 11м×9м
Кол-во комнат: 5
Цокольный этаж: нет
Гараж: нет
Мансарда: есть

Kонструкция
Фундамент: Ленточный
Перекрытия: Деревянные балки
Материал стен: Газобетон

Архитектурный раздел
Конструктивный раздел
Инженерный раздел
Смета на строительство
АР+КР - 52 000 (Со скидкой 20%)
АР+КР+ИР - 102 400 (Со скидкой 50%)
Проект индивидуального одноэтажного жилого дома с мансардой с размерами здания 11,04 x 9,04 м. Наружная отделка здания - фасадная штукатурка/клинкерная плитка/деревянные панели. Цоколь - клинкерная плитка. Отделка вентканалов -штукатурка. Фундамент - ленточный, монолитный, ж/б. Наружные стены здания: газобетонные блоки, минеральная вата, с отделкой фасадной штукатуркой/клинкерной плиткой/деревянными панелями. Внутренние стены - газобетонные блоки. Перегородки - ГКЛ на металлическом каркасе с использованием теплошумоизоляционных материалов в межкаркасном пространстве. Пол 1 этажа - пол по грунту. Межэтажное перекрытие - по деревянным балкам с использованием теплошумоизоляционных материалов типа "URSA" в межбалочном пространстве. Перемычки - монолитные железобетонные и сварные из профиля проката. Крыша - двускатная. Покрытие - битумная черепица. Окна - металлопластиковые, выполнить по индивидуальному заказу. Лестница - металлическая, выполнить по индивидуальному заказу.
Генплан застройки участка / Паспорт проекта 7000 руб / 10000 руб
Инженерный раздел (полный) 50400 руб (72000 руб)
Смета на строительство 27000 руб (36000 руб)
Теплотехнический расчет материалов стен Бесплатно
Стоимость проекта со незначительнми изменениями 61400 руб
Стоимость проекта со средними изменениями* 72200 руб
Стоимость проекта со значительными изменениями** 75100 руб

План первого этажа


Тамбур - 3,22 м2
Холл - 5,79 м2
Гостиная - 25,84 м2
Кухня - 10,97 м2
Кладовая - 2,16 м2
Гардеробная - 1,20 м2
Бойлерная - 5,42 м2
Гостевая - 10,50 м2
С/у - 1,50 м2

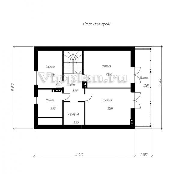
План мансардного этажа


Холл - 6,76 м2
Спальня - 21,05 м2
Спальня - 19,95 м2
Гардероб - 5,75 м2
Ванная - 7,90 м2
Спальня - 11,34 м2
Одноэтажный дом с мансардой Одноэтажный дом с мансардой Одноэтажный дом с мансардой Одноэтажный дом с мансардой

Модификации проектов

Внесение изменений и привязка к участку строительства

В любой из проектов от компании VIPplan - Усолье-Сибирское по вашему желанию могут быть внесены изменения в материалы стен, материалы наружной отделки дома, а также будет произведена адаптация проекта под конкретный регион строительства (с учетом грунтов региона, геологических особенностей вашего участка и местных климатических условий) - БЕСПЛАТНО !!! (кроме проектов со скидкой и проектов наших партнеров).

Любой из проектов, размещенных на сайте usole-sibirskoe.vipplan.ru мы можем выполнить из требуемых вам строительных материалов: ячеистый бетон (газобетон, пеноблок), керамоблок, кирпич, шлакоблок, бетонный блок, дерево (брус, клееный брус), каркасная технология (деревянный каркас, металлокаркас (ЛСТК)).

Фасад дома и его наружную отделку так же возможно выполнить с применением различных облицовочных материалов: структурной штукатурки, (с утеплителем и без), сайдингом (пластиковый или металлосайдинг), фиброплитами, кирпича.

 
6 Избранные
проекты

Доставка проектов по России: Москва (Московская область), Санкт-Петербург (Ленинградская область), Краснодар, Ростов-на-Дону, Ставрополь, Сочи, Волгоград, Новосибирск, Белгород, Брянск, Воронеж, Саратов, Хабаровск, Астрахань, Нальчик, Владикавказ, Екатеринбург, Тюмень, Самара, Нижний Новгород, Казань, Пермь, Уфа, Челябинск, Красноярск, Ханты-Мансийск, Иркутск, Курган, Оренбург, Омск, Томск, Барнаул, Новокузнецк, Кемерово, Абакан, Чита, Якутск, Южно-Сахалинск, Петропавловск-Камчатский и страны ближнего зарубежья: Белоруссия, Украина, Казахстан