Добро пожаловать на http://vipplan.ru

Випплан Усолье-Сибирское - это тысячи проектов домов в нашем каталоге!

Вы всегда сможете найти для себя проект дома вашей мечты! Даже если этого не случилось, мы готовы в любую минуту предложить проект индивидуального дома.

Забыли пароль?
Вы еще не регистрировались?

Перейдите по ссылке ниже на страницу регистрации.

Регистрация...

Внимание!!!

В проектную документацию могут быть внесены изменения любой сложности, в соответствии в Вашими пожеланиями!

Полезные статьи

Выбор проекта дома в Усолье-Сибирском

Выбор проекта дома может завести семью в тупик. Прийти к одному конкретному мнению всем членам семьи очень сложно. Кому-то по душе, чтобы дом был большой и одноэтажный, с красивой террасой или верандой, кому-то хочется жить в двухэтажном доме с балконом. Детям, в основном, нравятся дома с мансардой....

Свайно-ростверковый, буронабивной фундамент

Для объединения свай в общий фундамент устанавливают бетонные ростверки (железобетонные плиты). Устройство ростверка зависит от расположения, вида свай и конструкции здания. Ростверки могут быть монолитными, сборными или сборно-монолитными, также возможны безростверковые решения. ...

Проекты домов и коттеджей > Каталог проектов домов > Одноэтажный дом с мансардой, гаражом и просторной гостиной Vg3642

Одноэтажный дом с мансардой, гаражом и просторной гостиной Vg3642

Одноэтажный дом с мансардой, гаражом и просторной гостиной
Зарегистрируйтесь

Проект № Vg3642


Техническое описание
Общая площадь: 286.15 м2
Жилая площадь: 151.24 м2
Высота здания: 11.71 м
Размеры дома: 15.69м×20.24м
Кол-во комнат: 7
Цокольный этаж: нет
Гараж: нет
Мансарда: есть

Kонструкция
Фундамент: монолитная плита
Перекрытия: монолитные

Архитектурный раздел
Конструктивный раздел
Инженерный раздел
АР+КР - 72 000 (Со скидкой 20%)
АР+КР+ИР - 172 100 (Со скидкой 50%)
Проект одноэтажного дома с мансардой, гаражом и просторной гостиной с размерами здания 15,69 х 20,24 м. Фундамент – монолитная ж/б плита под всей площадью дома (мелкозаглубленная). Наружные стены – керамические блоки с обрешеткой, контробрешеткой и отделкой сайдингом. Внутренние стены – керамические блоки. Перегородки – кирпич пустотелый. Пол 1 этажа – пол по монолитной плите. Межэтажное перекрытие – монолитная ж/б плита Крыша многоскатная. Кровля – профнастил. Окна — металлопластиковые. В стропильной системе имеются металлические элементы.
Генплан застройки участка / Паспорт проекта 7000 руб / 10000 руб
Инженерный раздел (полный) 100100 руб (143000 руб)
Смета на строительство 71500 руб
Теплотехнический расчет материалов стен Бесплатно
Стоимость проекта со незначительнми изменениями 82850 руб
Стоимость проекта со средними изменениями* 104300 руб
Стоимость проекта со значительными изменениями** 110000 руб

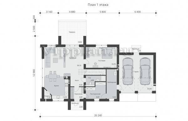
План первого этажа


Прихожая - 4,80 м2
Холл - 4,50 м2 Кухня - 14,50 м2
Кладовая - 1,45 м2
Гостиная - 34,16 м2
Гостевая - 19,78 м2
С/у - 4,88 м2
Постирочная - 8,87 м2
Бойлерная - 9,36 м2
Гараж - 37,93 м2

План мансардного этажа


Холл - 15,32 м2
Спальня - 19,22 м2 (19,78 м2)
Спальня - 14,67 м2
Балкон - 1,69 м2 (5,63 м2)
Спальня - 16,64 м2 (16,90 м2)
Балкон - 3,04 м2 (10,33 м2)
Спальня - 21,64 м2 (22,07 м2)
Балкон - 0,96 м2 (3,19 м2)
Ванная - 9,07 м2 (9,40 м2)
Кладовая - 5,49 м2 (5,70 м2)
Гардероб - 3,24 м2 (3,48 м2)
Спальня - 25,13 м2 (25,86 м2)
Балкон - 2,61 м2 (8,96 м2)
Ванная - 7,20 м2 (7,44 м2)
Одноэтажный дом с мансардой, гаражом и просторной гостиной Одноэтажный дом с мансардой, гаражом и просторной гостиной Одноэтажный дом с мансардой, гаражом и просторной гостиной Одноэтажный дом с мансардой, гаражом и просторной гостиной

Модификации проектов

Внесение изменений и привязка к участку строительства

В любой из проектов от компании VIPplan - Усолье-Сибирское по вашему желанию могут быть внесены изменения в материалы стен, материалы наружной отделки дома, а также будет произведена адаптация проекта под конкретный регион строительства (с учетом грунтов региона, геологических особенностей вашего участка и местных климатических условий) - БЕСПЛАТНО !!! (кроме проектов со скидкой и проектов наших партнеров).

Любой из проектов, размещенных на сайте usole-sibirskoe.vipplan.ru мы можем выполнить из требуемых вам строительных материалов: ячеистый бетон (газобетон, пеноблок), керамоблок, кирпич, шлакоблок, бетонный блок, дерево (брус, клееный брус), каркасная технология (деревянный каркас, металлокаркас (ЛСТК)).

Фасад дома и его наружную отделку так же возможно выполнить с применением различных облицовочных материалов: структурной штукатурки, (с утеплителем и без), сайдингом (пластиковый или металлосайдинг), фиброплитами, кирпича.

 
6 Избранные
проекты

Доставка проектов по России: Москва (Московская область), Санкт-Петербург (Ленинградская область), Краснодар, Ростов-на-Дону, Ставрополь, Сочи, Волгоград, Новосибирск, Белгород, Брянск, Воронеж, Саратов, Хабаровск, Астрахань, Нальчик, Владикавказ, Екатеринбург, Тюмень, Самара, Нижний Новгород, Казань, Пермь, Уфа, Челябинск, Красноярск, Ханты-Мансийск, Иркутск, Курган, Оренбург, Омск, Томск, Барнаул, Новокузнецк, Кемерово, Абакан, Чита, Якутск, Южно-Сахалинск, Петропавловск-Камчатский и страны ближнего зарубежья: Белоруссия, Украина, Казахстан