Добро пожаловать на http://vipplan.ru

Випплан Усолье-Сибирское - это тысячи проектов домов в нашем каталоге!

Вы всегда сможете найти для себя проект дома вашей мечты! Даже если этого не случилось, мы готовы в любую минуту предложить проект индивидуального дома.

Забыли пароль?
Вы еще не регистрировались?

Перейдите по ссылке ниже на страницу регистрации.

Регистрация...

Внимание!!!

В проектную документацию могут быть внесены изменения любой сложности, в соответствии в Вашими пожеланиями!

Полезные статьи

Виды фундаментов

Можно смело сказать, что самое главное качество фундамента - надежность. Фундамент дома бывает нескольких видов. Все они отличаются прочностью, технологией закладывания и областью использования. Запомните, экономить на фундаменте – плохая идея. Затраты на ремонт будут огромными, а зачастую в случае нарушения технологии закладки фундамента исправить ошибку будет невозможно....

Печи и камины в частном доме

Спросите любого человека, и вы поймете, что каждый человек мечтает иметь свой собственный дом, который он сможет обустроить так, как ему хочется. Этот дом будет полон уюта, тепла, света и комфорта, а главное, что, придя с работы, человек сможет запросто отдохнуть у своего очага.  Нет никакой альтернативы перед выбором печи или камина. Эти две вещи не сможет  заменить ни искусственный свет, ни солнечное освещение. Камин и печь, с древности, считаются предметом роскоши. Ни один большой дом не может обойтись без них, поскольку если удастся сесть и посидеть перед этим местом, то долго нельзя будет...

Проекты домов и коттеджей > Каталог проектов домов > Двухэтажный дом со спортзалом, террасами, балконом, кабинетом-библиотекой и гаражом на 2 машины. Vg3358

Двухэтажный дом со спортзалом, террасами, балконом, кабинетом-библиотекой и гаражом на 2 машины. Vg3358

Двухэтажный дом  со спортзалом, террасами, балконом, кабинетом-библиотекой и гаражом на 2 машины.
Зарегистрируйтесь

Проект № Vg3358


Техническое описание
Общая площадь: 520.67 м2
Жилая площадь: 210.97 м2
Высота здания: 8.5 м
Размеры дома: 25.47м×18.82м
Кол-во комнат: 6
Цокольный этаж: нет
Гараж: нет
Мансарда: нет

Kонструкция
Фундамент: ленточный
Перекрытия: монолитные
Материал стен: material_mon

АР+КР - 132 000 (Со скидкой 20%)
Двухэтажный дом с размерами здания 25,47 х 18,82м. Наружная отделка здания – фиброцементный панели. Фундамент – монолитный ленточный. Наружные стены – газобетонные блоки. Внутренние стены – газобетонные блоки. Перегородки – газобетонные блоки. Пол 1 этажа – монолитная ж/б плита. Пол 2 этажа – монолитная ж/б плита. Чердачное перекрытие – монолитная ж/б плита. Крыша плоская. Окна — металлопластиковые.
Генплан застройки участка / Паспорт проекта 7000 руб / 10000 руб
Инженерный раздел (полный) 260500 руб
Смета на строительство 130250 руб
Теплотехнический расчет материалов стен Бесплатно
Стоимость проекта со незначительнми изменениями 151950 руб
Стоимость проекта со средними изменениями* 191100 руб
Стоимость проекта со значительными изменениями** 201500 руб

План первого этажа


Прихожая - 10,23 м2
Гараж - 48,18 м2
Бойлерная - 9,73 м2
Гардероб - 6,00 м2
Студия - 47,24 м2
Ванная - 5,71 м2
Кухня - 12,42 м2
Холл - 10,99 м2
Гостиная - 52,45 м2
Кабинет-Библиотека - 30,00 м2
Холл - 4,08 м2
Душевая - 4,20 м2
Кладовая - 3,80 м2
Спортзал - 33,00 м2

Двухэтажный дом со спортзалом, террасами, балконом, кабинетом-библиотекой и гаражом на 2 машины.

Двухэтажный дом  со спортзалом, террасами, балконом, кабинетом-библиотекой и гаражом на 2 машины.

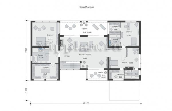
План второго этажа


Комната отдыха - 80,44 м2
Гардероб - 21,00 м2
Ванная - 12,84 м2
Спальня - 41,19 м2
Терраса - 10,40 (34,66) м2
Гардероб - 6,89 м2
Ванная - 6,70 м2
Спальня - 23,10 м2
Спальня - 23,15 м2
Гардероб - 6,80 м2
Ванная - 6,80 м2
Балкон - 3,33 (11,11) м2
Двухэтажный дом  со спортзалом, террасами, балконом, кабинетом-библиотекой и гаражом на 2 машины. Двухэтажный дом  со спортзалом, террасами, балконом, кабинетом-библиотекой и гаражом на 2 машины. Двухэтажный дом  со спортзалом, террасами, балконом, кабинетом-библиотекой и гаражом на 2 машины. Двухэтажный дом  со спортзалом, террасами, балконом, кабинетом-библиотекой и гаражом на 2 машины.
Внесение изменений и привязка к участку строительства

В любой из проектов от компании VIPplan - Усолье-Сибирское по вашему желанию могут быть внесены изменения в материалы стен, материалы наружной отделки дома, а также будет произведена адаптация проекта под конкретный регион строительства (с учетом грунтов региона, геологических особенностей вашего участка и местных климатических условий) - БЕСПЛАТНО !!! (кроме проектов со скидкой и проектов наших партнеров).

Любой из проектов, размещенных на сайте usole-sibirskoe.vipplan.ru мы можем выполнить из требуемых вам строительных материалов: ячеистый бетон (газобетон, пеноблок), керамоблок, кирпич, шлакоблок, бетонный блок, дерево (брус, клееный брус), каркасная технология (деревянный каркас, металлокаркас (ЛСТК)).

Фасад дома и его наружную отделку так же возможно выполнить с применением различных облицовочных материалов: структурной штукатурки, (с утеплителем и без), сайдингом (пластиковый или металлосайдинг), фиброплитами, кирпича.

 
6 Избранные
проекты

Доставка проектов по России: Москва (Московская область), Санкт-Петербург (Ленинградская область), Краснодар, Ростов-на-Дону, Ставрополь, Сочи, Волгоград, Новосибирск, Белгород, Брянск, Воронеж, Саратов, Хабаровск, Астрахань, Нальчик, Владикавказ, Екатеринбург, Тюмень, Самара, Нижний Новгород, Казань, Пермь, Уфа, Челябинск, Красноярск, Ханты-Мансийск, Иркутск, Курган, Оренбург, Омск, Томск, Барнаул, Новокузнецк, Кемерово, Абакан, Чита, Якутск, Южно-Сахалинск, Петропавловск-Камчатский и страны ближнего зарубежья: Белоруссия, Украина, Казахстан