Добро пожаловать на http://vipplan.ru

Випплан Усолье-Сибирское - это тысячи проектов домов в нашем каталоге!

Вы всегда сможете найти для себя проект дома вашей мечты! Даже если этого не случилось, мы готовы в любую минуту предложить проект индивидуального дома.

Забыли пароль?
Вы еще не регистрировались?

Перейдите по ссылке ниже на страницу регистрации.

Регистрация...

Внимание!!!

В проектную документацию могут быть внесены изменения любой сложности, в соответствии в Вашими пожеланиями!

Полезные статьи

Комбинированные дома

Посмотрите, насколько далеко шагнула архитектура за последние десятилетия. Сколько изменилось в облике современных городов. А задумывались ли наши родители, о том что они увидят необыкновенные небоскребы и элитные многоквартирные дома, чьи фасады напоминают обруганную капиталистическую действительность. У людей появилась возможность построить дом за городом и в тишине на природе, реализовать любые дизайнерские фантазии. Те, кто может позволить себе частный дом, не ограничены финансами. Для многих частный дом – это показатель их материального благополучия, поэтому никто из них не хочет испол...

Сборные фундаменты

В наше время все большую популярность при строительстве дома приобретают сборные бетонные и железобетонные блоки. Их использование значительно сокращает время работ и снижает их трудоемкость....

Проекты домов и коттеджей > Каталог проектов домов > Проект одноэтажного дома на склоне Vg2327

Проект одноэтажного дома на склоне Vg2327

Проект одноэтажного дома на склоне
Зарегистрируйтесь

Проект № Vg2327


Техническое описание
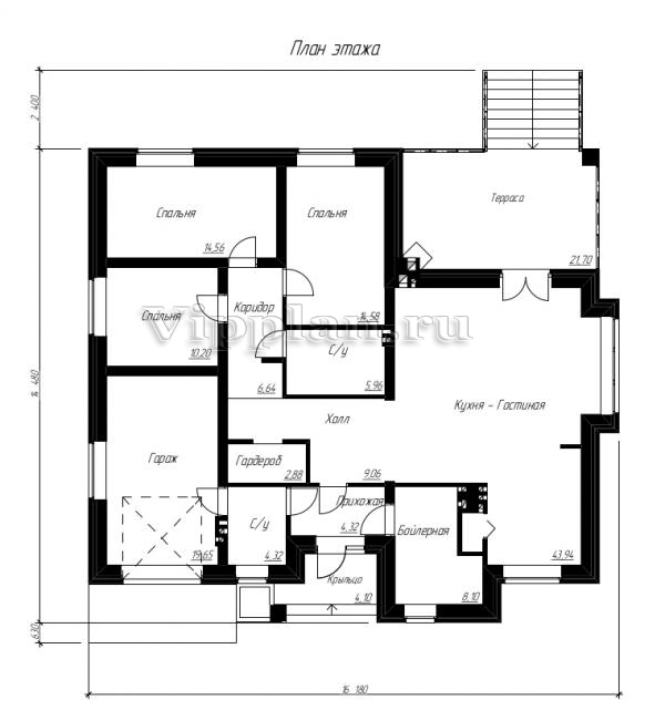
Общая площадь: 144.21 м2
Жилая площадь: 83.28 м2
Высота здания: 6.33 м
Размеры дома: 14.48м×16.18м
Кол-во комнат: 4
Цокольный этаж: нет
Гараж: есть
Мансарда: нет

Kонструкция
Фундамент: Ленточный монолитный ж/б.
Перекрытия: Деревянные балки.
Материал стен: Газобетон

Архитектурный раздел
Конструктивный раздел
АР+КР - 52 000 (Со скидкой 20%)
Проект индивидуального одноэтажного жилого дома с размерами здания 14,48 x 16,18 м. Фундамент – ленточный монолитный ж/б. Наружные стены – газобетонные блоки, минеральная вата, облицовочный кирпич. Внутренние стены - газобетонный блок. Перегородки – забутовочный кирпич. Пол этажа - пол по грунту, чердачное перекрытие - деревянные балки. Крыша многоскатная. Кровля – металлочерепица. Окна — металлопластиковые.
Генплан застройки участка / Паспорт проекта 7000 руб / 10000 руб
Инженерный раздел (полный) 72000 руб
Смета на строительство 36000 руб
Теплотехнический расчет материалов стен Бесплатно
Стоимость проекта со незначительнми изменениями 61400 руб
Стоимость проекта со средними изменениями* 72200 руб
Стоимость проекта со значительными изменениями** 75100 руб

План первого этажа


Прихожая — 4,32 кв м
Холл — 9,06 кв м
Кухня/Гостиная — 43,94 кв м
Бойлерная — 8,10 кв м
Гардероб — 2,88 кв м
С/у — 4,32 кв м
Коридор — 6,64 кв м
Спальня — 10,2 кв м
Спальня — 14,56 кв м
Спальня — 14,58 кв м
С/у — 5,96 кв м
Гараж — 19,65 кв м
Проект одноэтажного дома на склоне Проект одноэтажного дома на склоне Проект одноэтажного дома на склоне Проект одноэтажного дома на склоне
Внесение изменений и привязка к участку строительства

В любой из проектов от компании VIPplan - Усолье-Сибирское по вашему желанию могут быть внесены изменения в материалы стен, материалы наружной отделки дома, а также будет произведена адаптация проекта под конкретный регион строительства (с учетом грунтов региона, геологических особенностей вашего участка и местных климатических условий) - БЕСПЛАТНО !!! (кроме проектов со скидкой и проектов наших партнеров).

Любой из проектов, размещенных на сайте usole-sibirskoe.vipplan.ru мы можем выполнить из требуемых вам строительных материалов: ячеистый бетон (газобетон, пеноблок), керамоблок, кирпич, шлакоблок, бетонный блок, дерево (брус, клееный брус), каркасная технология (деревянный каркас, металлокаркас (ЛСТК)).

Фасад дома и его наружную отделку так же возможно выполнить с применением различных облицовочных материалов: структурной штукатурки, (с утеплителем и без), сайдингом (пластиковый или металлосайдинг), фиброплитами, кирпича.

 
6 Избранные
проекты

Доставка проектов по России: Москва (Московская область), Санкт-Петербург (Ленинградская область), Краснодар, Ростов-на-Дону, Ставрополь, Сочи, Волгоград, Новосибирск, Белгород, Брянск, Воронеж, Саратов, Хабаровск, Астрахань, Нальчик, Владикавказ, Екатеринбург, Тюмень, Самара, Нижний Новгород, Казань, Пермь, Уфа, Челябинск, Красноярск, Ханты-Мансийск, Иркутск, Курган, Оренбург, Омск, Томск, Барнаул, Новокузнецк, Кемерово, Абакан, Чита, Якутск, Южно-Сахалинск, Петропавловск-Камчатский и страны ближнего зарубежья: Белоруссия, Украина, Казахстан