Добро пожаловать на http://vipplan.ru

Випплан Усолье-Сибирское - это тысячи проектов домов в нашем каталоге!

Вы всегда сможете найти для себя проект дома вашей мечты! Даже если этого не случилось, мы готовы в любую минуту предложить проект индивидуального дома.

Забыли пароль?
Вы еще не регистрировались?

Перейдите по ссылке ниже на страницу регистрации.

Регистрация...

Внимание!!!

В проектную документацию могут быть внесены изменения любой сложности, в соответствии в Вашими пожеланиями!

Полезные статьи

Зачем нужен проект дома?

Зачем нужен проект? - спросите вы. Проект дома является важной и неотъемлемой частью при строительстве дома. После покупки проекта, вы получите разрешение на строительство, предоставив его в местную архитектуру, а после, с его помощью, построите дом....

Выбор проекта дома в Усолье-Сибирском

Выбор проекта дома может завести семью в тупик. Прийти к одному конкретному мнению всем членам семьи очень сложно. Кому-то по душе, чтобы дом был большой и одноэтажный, с красивой террасой или верандой, кому-то хочется жить в двухэтажном доме с балконом. Детям, в основном, нравятся дома с мансардой....

Проекты домов и коттеджей > Каталог проектов домов > Проект удобного коттеджа с гаражом на 2 автомобиля Vg1367

Проект удобного коттеджа с гаражом на 2 автомобиля Vg1367

Проект удобного коттеджа с гаражом на 2 автомобиля
Зарегистрируйтесь

Проект № Vg1367


Техническое описание
Общая площадь: 247.94 м2
Жилая площадь: 140.63 м2
Высота здания: 8.13 м
Размеры дома: 10.04м×19.24м
Кол-во комнат: 6
Цокольный этаж: нет
Гараж: нет
Мансарда: есть

Kонструкция
Фундамент: Монолитный ж/б
Перекрытия: Деревянные балки
Материал стен: Газобетон

Архитектурный раздел
Конструктивный раздел
АР+КР - 64 000 (Со скидкой 20%)
Проект индивидуального одноэтажного жилого дома с мансардой, размерами 10,04 х 19,24 м. Наружная отделка здания – облицовочный кирпич. Цоколь – камень. Кровля – металлочерепица. Отделка вентканалов и дымоходов – камень. Фундамент – монолитная железобетонная плита. Наружные стены: газобетонные блоки, утеплитель экструдированный пенополистирол,воздушный зазор, облицовочный кирпич. Внутренние стены и перегородки – газобетонные блоки, каркасные перегородки с ГКЛ. Перемычки – монолитные. Пол первого этажа – пол по грунту. Чердачное перекрытие - по деревянным балкам с использованием теплошумоизоляционных материалов типа «URSA» в межбалочном пространстве. Крыша многоскатная. Окна металлопластиковые, выполненные по индивидуальному заказу.
Генплан застройки участка / Паспорт проекта 7000 руб / 10000 руб
Инженерный раздел (полный) 124000 руб
Смета на строительство 62000 руб
Теплотехнический расчет материалов стен Бесплатно
Стоимость проекта со незначительнми изменениями 73800 руб
Стоимость проекта со средними изменениями* 92400 руб
Стоимость проекта со значительными изменениями** 97400 руб

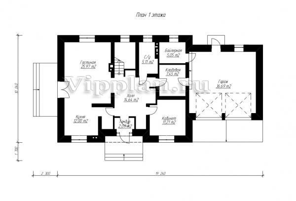
План первого этажа


Тамбур — 2,09 кв м
Холл — 14,64 кв м
Гостиная — 25,97 кв м
Кухня — 12,00 кв м
С/у — 5,11 кв м
Бойлерная — 5,05 кв м
Кладовая — 7,45 кв м
Кабинет — 11,21 кв м
Гараж — 36,69 кв м

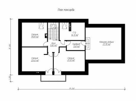
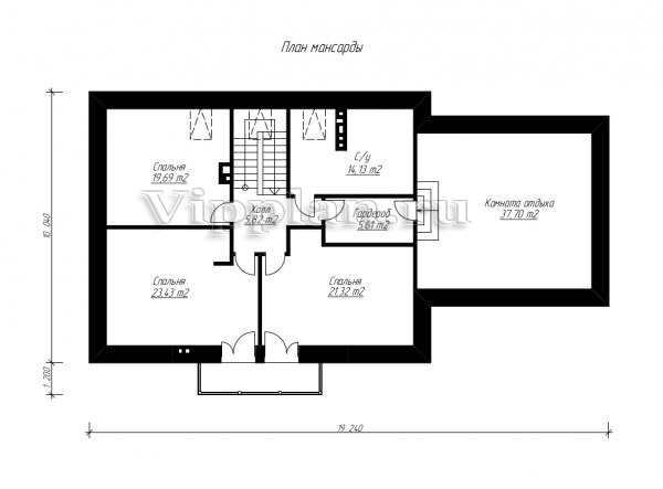
План мансардного этажа


Холл — 5,82 кв м
С/у — 14,13 кв м
Гардероб — 5,61 кв м
Спальня — 21,32 кв м
Спальня — 23,43 кв м
Спальня — 19,69 кв м
Комната — 37,70 кв м
Проект удобного коттеджа с гаражом на 2 автомобиля Проект удобного коттеджа с гаражом на 2 автомобиля Проект удобного коттеджа с гаражом на 2 автомобиля Проект удобного коттеджа с гаражом на 2 автомобиля
Внесение изменений и привязка к участку строительства

В любой из проектов от компании VIPplan - Усолье-Сибирское по вашему желанию могут быть внесены изменения в материалы стен, материалы наружной отделки дома, а также будет произведена адаптация проекта под конкретный регион строительства (с учетом грунтов региона, геологических особенностей вашего участка и местных климатических условий) - БЕСПЛАТНО !!! (кроме проектов со скидкой и проектов наших партнеров).

Любой из проектов, размещенных на сайте usole-sibirskoe.vipplan.ru мы можем выполнить из требуемых вам строительных материалов: ячеистый бетон (газобетон, пеноблок), керамоблок, кирпич, шлакоблок, бетонный блок, дерево (брус, клееный брус), каркасная технология (деревянный каркас, металлокаркас (ЛСТК)).

Фасад дома и его наружную отделку так же возможно выполнить с применением различных облицовочных материалов: структурной штукатурки, (с утеплителем и без), сайдингом (пластиковый или металлосайдинг), фиброплитами, кирпича.

 
6 Избранные
проекты

Доставка проектов по России: Москва (Московская область), Санкт-Петербург (Ленинградская область), Краснодар, Ростов-на-Дону, Ставрополь, Сочи, Волгоград, Новосибирск, Белгород, Брянск, Воронеж, Саратов, Хабаровск, Астрахань, Нальчик, Владикавказ, Екатеринбург, Тюмень, Самара, Нижний Новгород, Казань, Пермь, Уфа, Челябинск, Красноярск, Ханты-Мансийск, Иркутск, Курган, Оренбург, Омск, Томск, Барнаул, Новокузнецк, Кемерово, Абакан, Чита, Якутск, Южно-Сахалинск, Петропавловск-Камчатский и страны ближнего зарубежья: Белоруссия, Украина, Казахстан