Добро пожаловать на http://vipplan.ru

Випплан Усолье-Сибирское - это тысячи проектов домов в нашем каталоге!

Вы всегда сможете найти для себя проект дома вашей мечты! Даже если этого не случилось, мы готовы в любую минуту предложить проект индивидуального дома.

Забыли пароль?
Вы еще не регистрировались?

Перейдите по ссылке ниже на страницу регистрации.

Регистрация...

Внимание!!!

В проектную документацию могут быть внесены изменения любой сложности, в соответствии в Вашими пожеланиями!

Полезные статьи

Сборные фундаменты

В наше время все большую популярность при строительстве дома приобретают сборные бетонные и железобетонные блоки. Их использование значительно сокращает время работ и снижает их трудоемкость....

Правильная изоляция подвала

Какой выбрать материал, как правильно выполнить работу, перед началом изоляции подвала какие подготовительно-строительные работы следует провести и какой момент играет правильное выполнение работ. Последние несколько лет придали много хлопот жильцам домов, увлажнив им подвалы. Этот период показал насколько важно обеспечить надлежащую защиту зданий от грунтовых вод и воздействия влаги....

Проекты домов и коттеджей > Каталог проектов домов > Двухэтажный дом с цоколем Vg1295

Двухэтажный дом с цоколем Vg1295

Двухэтажный дом с цоколем
Зарегистрируйтесь

Проект № Vg1295


Техническое описание
Общая площадь: 435.8 м2
Жилая площадь: 231.36 м2
Высота здания: 9.35 м
Размеры дома: 12.3м×17.8м
Кол-во комнат: 7
Цокольный этаж: есть
Гараж: нет
Мансарда: нет

Kонструкция
Фундамент: Ленточный
Перекрытия: Монолитные перекрытия
Материал стен: Кирпич

Архитектурный раздел
Конструктивный раздел
АР+КР - 100 000 (Со скидкой 20%)
Проект индивидуального двухэтажного жилого дома с подвалом с размерами 12.3 x 17.8 м. Наружная отделка здания – декоративная фасадная штукатурка/деревянные панели. Отделка цоколя – гранит. Фундамент – ленточный монолитный по монолитной ж/б плите. Наружные стены запроектированы из забутовочного кирпича с декортивной фасадной штукатуркой и деревянными панелями. Внутренние стены – из забутовочного кирпича. Перегородки – из забутовочного кирпича. Пол подвала – пол по фундаментной плите. Перекрытия межэтажные – монолитные ж/б. Перекрытие чердачное — по деревянным балкам с использованием тепло-шумоизоляционных материалов. Крыша - многокатная. Материал кровли – цементно-песчаная черепица. Окна - металлопластиковые, выполненные по индивидуальному заказу.
Генплан застройки участка / Паспорт проекта 7000 руб / 10000 руб
Инженерный раздел (полный) 218000 руб
Смета на строительство 109000 руб
Теплотехнический расчет материалов стен Бесплатно
Стоимость проекта со незначительнми изменениями 114100 руб
Стоимость проекта со средними изменениями* 146800 руб
Стоимость проекта со значительными изменениями** 155500 руб

План цокольного этажа


Холл — 13,68 кв м
Постирочная — 12,31 кв м
Кинотеатр — 40,49 кв м
Комната — 20,41 кв м
Душевая — 5,75 кв м
Баня — 5,33 кв м
Сауна — 6,50 кв м
Спортзал — 25,07 кв м
Кладовая — 12,73 кв м

План первого этажа


Тамбур — 2,58 кв м
Прихожая — 20,83 кв м
Холл — 10,94 кв м
Гостиная — 41,43 кв м
Кухня — 12,36 кв м
С/у — 12,39 кв м
Бойлерная — 5,77 кв м
Гараж — 39,03 кв м

Двухэтажный дом с цоколем

Двухэтажный дом с цоколем

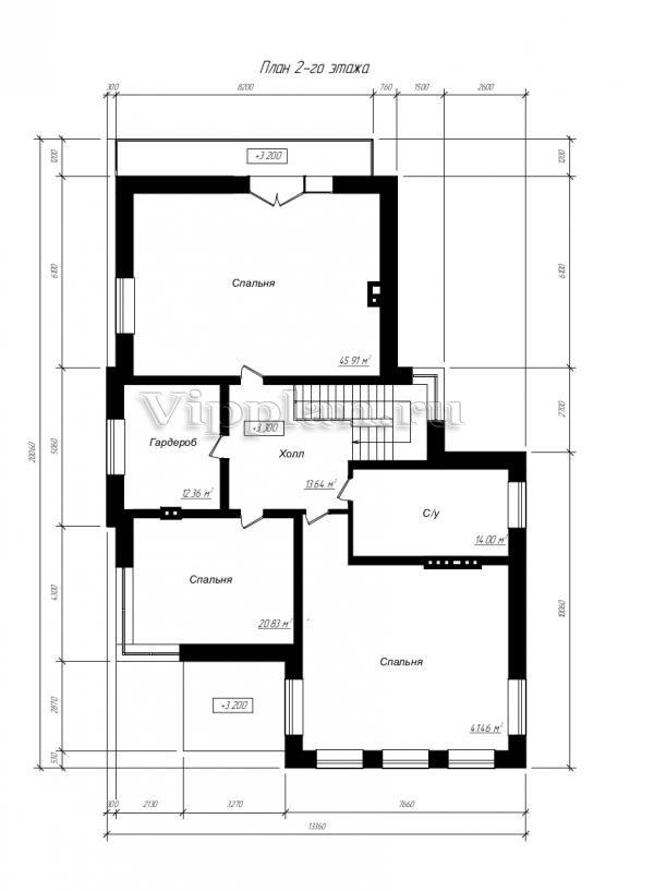
План второго этажа


Холл — 13,64 кв м
Гардероб — 12,36 кв м
Спальня — 45,91 кв м
Спальня — 20,83 кв м
С/у — 14,00 кв м
Спальня — 41,46 кв м
Двухэтажный дом с цоколем Двухэтажный дом с цоколем Двухэтажный дом с цоколем Двухэтажный дом с цоколем

Модификации проектов

Внесение изменений и привязка к участку строительства

В любой из проектов от компании VIPplan - Усолье-Сибирское по вашему желанию могут быть внесены изменения в материалы стен, материалы наружной отделки дома, а также будет произведена адаптация проекта под конкретный регион строительства (с учетом грунтов региона, геологических особенностей вашего участка и местных климатических условий) - БЕСПЛАТНО !!! (кроме проектов со скидкой и проектов наших партнеров).

Любой из проектов, размещенных на сайте usole-sibirskoe.vipplan.ru мы можем выполнить из требуемых вам строительных материалов: ячеистый бетон (газобетон, пеноблок), керамоблок, кирпич, шлакоблок, бетонный блок, дерево (брус, клееный брус), каркасная технология (деревянный каркас, металлокаркас (ЛСТК)).

Фасад дома и его наружную отделку так же возможно выполнить с применением различных облицовочных материалов: структурной штукатурки, (с утеплителем и без), сайдингом (пластиковый или металлосайдинг), фиброплитами, кирпича.

 
6 Избранные
проекты

Доставка проектов по России: Москва (Московская область), Санкт-Петербург (Ленинградская область), Краснодар, Ростов-на-Дону, Ставрополь, Сочи, Волгоград, Новосибирск, Белгород, Брянск, Воронеж, Саратов, Хабаровск, Астрахань, Нальчик, Владикавказ, Екатеринбург, Тюмень, Самара, Нижний Новгород, Казань, Пермь, Уфа, Челябинск, Красноярск, Ханты-Мансийск, Иркутск, Курган, Оренбург, Омск, Томск, Барнаул, Новокузнецк, Кемерово, Абакан, Чита, Якутск, Южно-Сахалинск, Петропавловск-Камчатский и страны ближнего зарубежья: Белоруссия, Украина, Казахстан