Добро пожаловать на http://vipplan.ru

Випплан Усолье-Сибирское - это тысячи проектов домов в нашем каталоге!

Вы всегда сможете найти для себя проект дома вашей мечты! Даже если этого не случилось, мы готовы в любую минуту предложить проект индивидуального дома.

Забыли пароль?
Вы еще не регистрировались?

Перейдите по ссылке ниже на страницу регистрации.

Регистрация...

Внимание!!!

В проектную документацию могут быть внесены изменения любой сложности, в соответствии в Вашими пожеланиями!

Полезные статьи

Сборные фундаменты

В наше время все большую популярность при строительстве дома приобретают сборные бетонные и железобетонные блоки. Их использование значительно сокращает время работ и снижает их трудоемкость....

Применение свайных фундаментов

Сваи представляют собой длинные стержни, погруженные глубоко в грунт или изготовленные непосредственно в грунте. Покупные сваи с одной стороны имеют заостренный конец, который забивается в почву с помощью специальной техники. Установка свай, изготовленных своими руками, предполагают бурение скважин, армирование и заливку бетонного раствора. ...

Проекты домов и коттеджей > Каталог проектов домов > Проект двухэтажного стильного коттеджа Vg1236

Проект двухэтажного стильного коттеджа Vg1236

Проект двухэтажного стильного коттеджа
Зарегистрируйтесь

Проект № Vg1236


Техническое описание
Общая площадь: 190.13 м2
Жилая площадь: 93.21 м2
Высота здания: 7.25 м
Размеры дома: 14.8м×10.6м
Кол-во комнат: 4
Цокольный этаж: нет
Гараж: нет
Мансарда: нет

Kонструкция
Фундамент: Ленточный
Перекрытия: Монолитные перекрытия
Материал стен: Газобетон

АР+КР - 60 000 (Со скидкой 20%)
Срок подготовки проекта – 7 рабочих дней. Проект индивидуального одноэтажного жилого дома с размерами здания 14,8 x 10,6 м. Наружная отделка здания комбинированная: отделка камнем/фасадная штукатурка. Фундамент - ленточный монолитный ж/б . Наружные стены: газобетонные блоки, утеплитель, отделка камнем/фасадной штукатуркой. Внутренние стены - из газобетонных блоков. Перегородки выполняются из кирпича. Снаружи вентканалы и дымоходы штукатуркой.. Перемычки – монолитные и сварные из профиля проката. Пол первого этажа - пол по грунту. Пол второго этажа — монолитное ж/б. Кровля — плоская эксплуатируемая Окна - металлопластиковые, выполненные по индивидуальному заказу.
Генплан застройки участка / Паспорт проекта 7000 руб / 10000 руб
Инженерный раздел (полный) 95000 руб
Смета на строительство 47500 руб
Теплотехнический расчет материалов стен Бесплатно
Стоимость проекта со незначительнми изменениями 70250 руб
Стоимость проекта со средними изменениями* 84500 руб
Стоимость проекта со значительными изменениями** 88300 руб

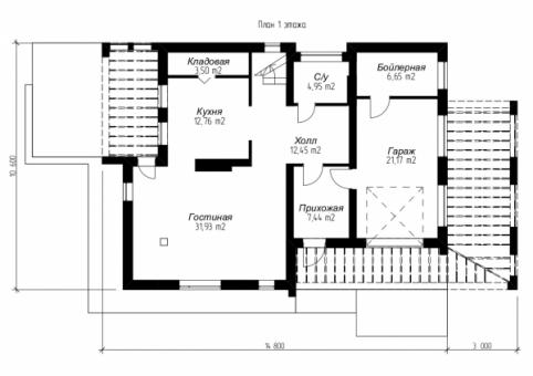
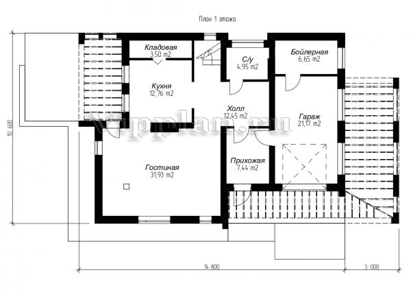
План первого этажа


Прихожая — 7,44 м2
Холл — 12,45 м2
Гостиная — 31,93 м2
Кухня — 12,76 м2
Кладовая — 3,50 м2
С/у — 4,95 м2
Бойлерная — 6,65 м2
Гараж — 21,17 м2

Проект двухэтажного стильного коттеджа

Проект двухэтажного стильного коттеджа

План второго этажа


Холл — 16,31 м2
С/у — 6,14 м2
С/у — 5,55 м2
Спальня — 16,10 м2
Спальня — 20,46 м2
Спальня — 24,72 м2
Проект двухэтажного стильного коттеджа Проект двухэтажного стильного коттеджа Проект двухэтажного стильного коттеджа Проект двухэтажного стильного коттеджа

Модификации проектов

Внесение изменений и привязка к участку строительства

В любой из проектов от компании VIPplan - Усолье-Сибирское по вашему желанию могут быть внесены изменения в материалы стен, материалы наружной отделки дома, а также будет произведена адаптация проекта под конкретный регион строительства (с учетом грунтов региона, геологических особенностей вашего участка и местных климатических условий) - БЕСПЛАТНО !!! (кроме проектов со скидкой и проектов наших партнеров).

Любой из проектов, размещенных на сайте usole-sibirskoe.vipplan.ru мы можем выполнить из требуемых вам строительных материалов: ячеистый бетон (газобетон, пеноблок), керамоблок, кирпич, шлакоблок, бетонный блок, дерево (брус, клееный брус), каркасная технология (деревянный каркас, металлокаркас (ЛСТК)).

Фасад дома и его наружную отделку так же возможно выполнить с применением различных облицовочных материалов: структурной штукатурки, (с утеплителем и без), сайдингом (пластиковый или металлосайдинг), фиброплитами, кирпича.

 
6 Избранные
проекты

Доставка проектов по России: Москва (Московская область), Санкт-Петербург (Ленинградская область), Краснодар, Ростов-на-Дону, Ставрополь, Сочи, Волгоград, Новосибирск, Белгород, Брянск, Воронеж, Саратов, Хабаровск, Астрахань, Нальчик, Владикавказ, Екатеринбург, Тюмень, Самара, Нижний Новгород, Казань, Пермь, Уфа, Челябинск, Красноярск, Ханты-Мансийск, Иркутск, Курган, Оренбург, Омск, Томск, Барнаул, Новокузнецк, Кемерово, Абакан, Чита, Якутск, Южно-Сахалинск, Петропавловск-Камчатский и страны ближнего зарубежья: Белоруссия, Украина, Казахстан