Добро пожаловать на http://vipplan.ru

Випплан Усолье-Сибирское - это тысячи проектов домов в нашем каталоге!

Вы всегда сможете найти для себя проект дома вашей мечты! Даже если этого не случилось, мы готовы в любую минуту предложить проект индивидуального дома.

Забыли пароль?
Вы еще не регистрировались?

Перейдите по ссылке ниже на страницу регистрации.

Регистрация...

Внимание!!!

В проектную документацию могут быть внесены изменения любой сложности, в соответствии в Вашими пожеланиями!

Полезные статьи

Применение ленточных фундаментов

Большинство людей никогда не сталкивались с выбором фундамента, а, столкнувшись, не могут определиться с выбором. Ведущие специалисты в области строительства утверждают, что лучшим типом фундамент - ленточный фундамент. Как показывает статистика, ленточный фундамент очень популярен среди жителей нашей страны. ...

Свайно-ростверковый, буронабивной фундамент

Для объединения свай в общий фундамент устанавливают бетонные ростверки (железобетонные плиты). Устройство ростверка зависит от расположения, вида свай и конструкции здания. Ростверки могут быть монолитными, сборными или сборно-монолитными, также возможны безростверковые решения. ...

Проекты домов и коттеджей > Каталог проектов домов > Дом с мансардой, гаражом, террасой и балконами Vg1114

Дом с мансардой, гаражом, террасой и балконами Vg1114

Дом с мансардой, гаражом, террасой и балконами
Зарегистрируйтесь

Проект № Vg1114


Техническое описание
Общая площадь: 168.34 м2
Жилая площадь: 88.47 м2
Высота здания: 8.63 м
Размеры дома: 13.52м×14.7м
Кол-во комнат: 5
Цокольный этаж: нет
Гараж: нет
Мансарда: есть

Kонструкция
Фундамент: Свайно-ростверковый
Перекрытия: Деревянные
Материал стен: Опалубка

Архитектурный раздел
Конструктивный раздел
АР+КР - 56 000 (Со скидкой 20%)
Проект индивидуального одноэтажного жилого дома с мансардой с размерами здания 13,52 x 14,74 м. Наружная отделка здания – фасадная штукатурка. Фундамент - свайно-ростверковый (буронабивной), "ТИСЭ". Наружные стены – по технологии несъемной опалубки, с отделкой фасадной штукатуркой. Внутренние стены - из несъемной опалубки. Перегородки – каркасные с ГКЛ . Пол первого этажа - по деревянным балкам. Межэтажное перекрытие-деревянные балки с использованием теплошумоизоляционных материалов типа "URSA" в межбалочном пространстве. Крыша многоскатная. Кровля – кровельный профлист. Окна - металлопластиковые, выполненные по индивидуальному заказу.
Генплан застройки участка / Паспорт проекта 7000 руб / 10000 руб
Инженерный раздел (полный) 84000 руб
Смета на строительство 42000 руб
Теплотехнический расчет материалов стен Бесплатно
Стоимость проекта со незначительнми изменениями 65800 руб
Стоимость проекта со средними изменениями* 78400 руб
Стоимость проекта со значительными изменениями** 81800 руб

План первого этажа


Крыльцо 1 — 5,57 кв м
Прихожая — 2,15 кв м
С/у — 5,24 кв м
Кухня — 16,06 кв м
Холл — 9,29 кв м
Гостиная — 25,67 кв м
Спальня — 12,08 кв м
Крыльцо 2 — 5,76 кв м
Гараж — 23,70 кв м

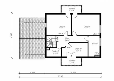
План мансардного этажа


Балкон — 4,69 кв м
Спальня — 18,31 кв м
Спальня — 20,57 кв м
Холл — 8,46 кв м
Гардероб — 4,23 кв м
Спальня — 11,84 кв м
Балкон — 4,69 кв м
Ванная — 7,92 кв м
Дом с мансардой, гаражом, террасой и балконами Дом с мансардой, гаражом, террасой и балконами Дом с мансардой, гаражом, террасой и балконами Дом с мансардой, гаражом, террасой и балконами
Внесение изменений и привязка к участку строительства

В любой из проектов от компании VIPplan - Усолье-Сибирское по вашему желанию могут быть внесены изменения в материалы стен, материалы наружной отделки дома, а также будет произведена адаптация проекта под конкретный регион строительства (с учетом грунтов региона, геологических особенностей вашего участка и местных климатических условий) - БЕСПЛАТНО !!! (кроме проектов со скидкой и проектов наших партнеров).

Любой из проектов, размещенных на сайте usole-sibirskoe.vipplan.ru мы можем выполнить из требуемых вам строительных материалов: ячеистый бетон (газобетон, пеноблок), керамоблок, кирпич, шлакоблок, бетонный блок, дерево (брус, клееный брус), каркасная технология (деревянный каркас, металлокаркас (ЛСТК)).

Фасад дома и его наружную отделку так же возможно выполнить с применением различных облицовочных материалов: структурной штукатурки, (с утеплителем и без), сайдингом (пластиковый или металлосайдинг), фиброплитами, кирпича.

 
6 Избранные
проекты

Доставка проектов по России: Москва (Московская область), Санкт-Петербург (Ленинградская область), Краснодар, Ростов-на-Дону, Ставрополь, Сочи, Волгоград, Новосибирск, Белгород, Брянск, Воронеж, Саратов, Хабаровск, Астрахань, Нальчик, Владикавказ, Екатеринбург, Тюмень, Самара, Нижний Новгород, Казань, Пермь, Уфа, Челябинск, Красноярск, Ханты-Мансийск, Иркутск, Курган, Оренбург, Омск, Томск, Барнаул, Новокузнецк, Кемерово, Абакан, Чита, Якутск, Южно-Сахалинск, Петропавловск-Камчатский и страны ближнего зарубежья: Белоруссия, Украина, Казахстан